Page suivante
Page précédente
Saint-Chef (38890)

Maison 4 pièce(s) 3 chambre(s) 120 m²

1
206 m²
85 000 €
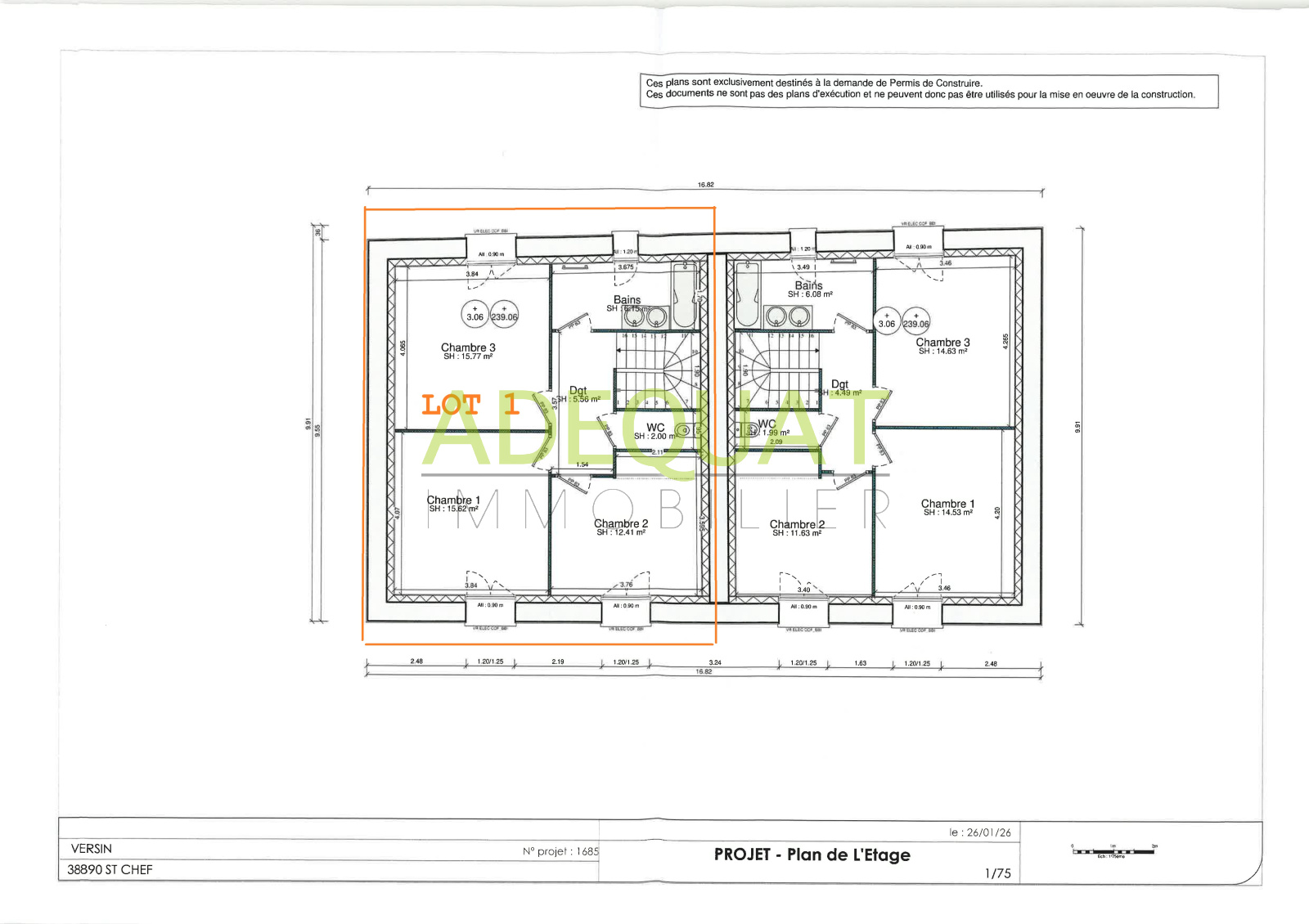
Réf 1940 - 1

A SAINT CHEF - 10mn de BOURGOIN JALLIEU, idéal pour les bricoleurs et les amoureux du patrimoine, les investisseurs locatifs après rénovation ! Maison d'habitation de 120m² sur 2 niveaux à rénover dans une grange dauphinoise qui a été divisée en 2. Elle nécessite tout à créer et est vendue avec Plans et Permis de construire, dispose d'une cour et d'un jardin privatif offrant calme et intimité.

Points forts :

  • Gros potentiel de personnalisation et d’optimisation des espaces
  • Possibilité de créer 2 niveaux pour gagner en surface habitable
  • Cour de stationnement et jardin privatif
  • Exposition Est/Ouest (lumière naturelle tout au long de la journée)
  • Environnement calme
  • Pas de copropriété

À prévoir :

  • Viabilisations et raccordements (Enedis,Telecom, Eau )
  • Assainissement individuel ( micro station )
  • Travaux de rénovation, aménagement et finitions selon vos choix

Pour touts renseignements complémentaires et visite, contacter Valérie PEROT 06x86x37x60x06 - Agente immobilière.

Les informations sur les risques auxquels ce bien est exposé sont disponibles sur le site Géorisques : www.georisques.gouv.fr

Bilan énergétique

Diagnostics énergetiques
Consommation énergétique
A B C D E F G
Emission de gaz à effet de serre
A B C D E F G
DPE non concerné
A propos de ce bien Caractéristiques de ce bien
  • Surface 120 m²
  • terrain 206 m²
  • séjour 55 m²
  • 3 chambre(s)
  • 1 salle(s) de bain
  • construit en 1850
  • cuisine
  • exposition Est-Ouest
  • 1 côté(s) mitoyen(s)
  • 2 niveau(x)

Financier

Informations financières
Prix de vente 85 000 € Les honoraires d'agence seront intégralement à la charge du vendeur

Simulation

Calcul des mensualités
* Champs obligatoires
ADEQUAT IMMOBILIER Agence