Page suivante
Page précédente
Saint-Chef (38890)

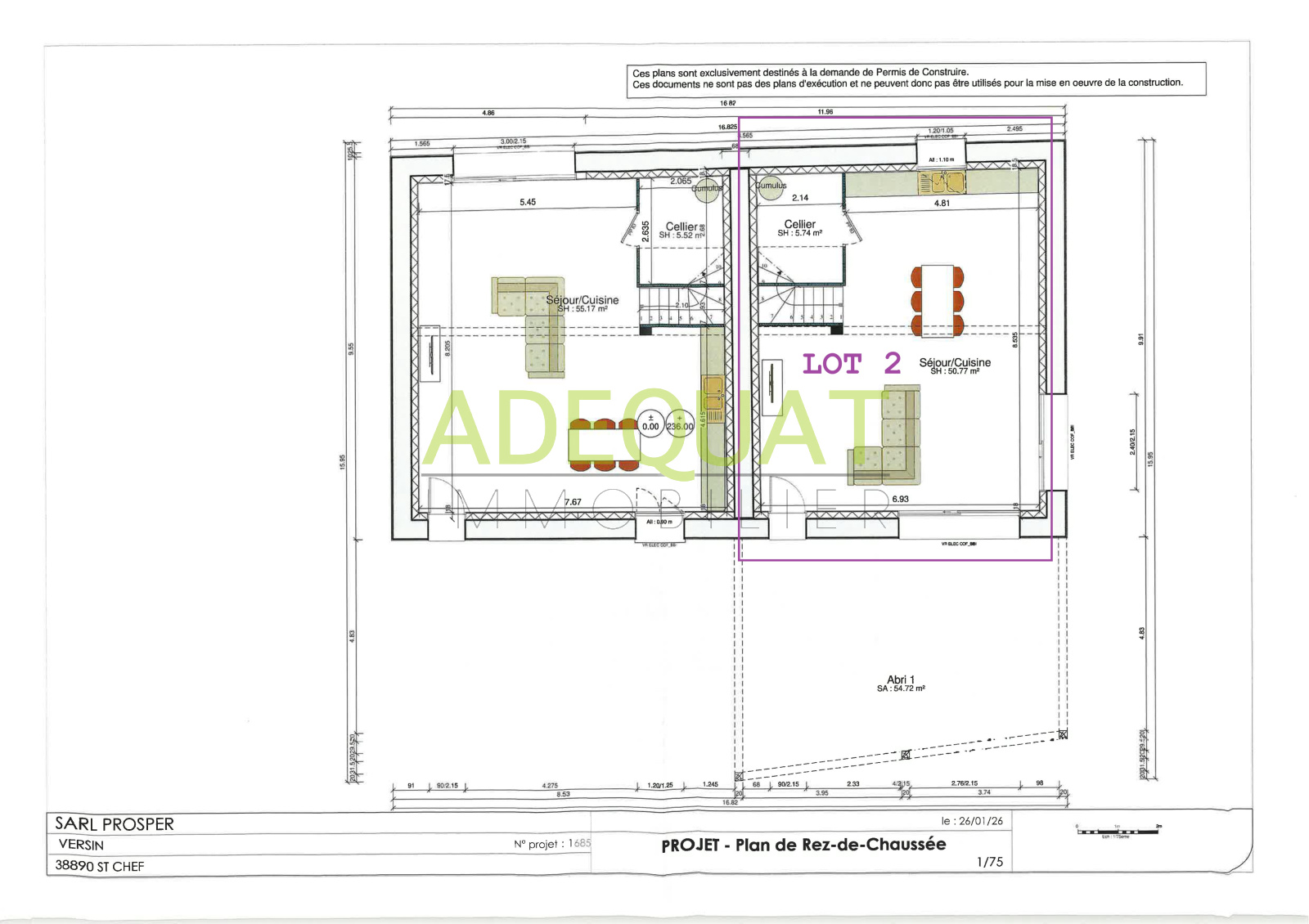
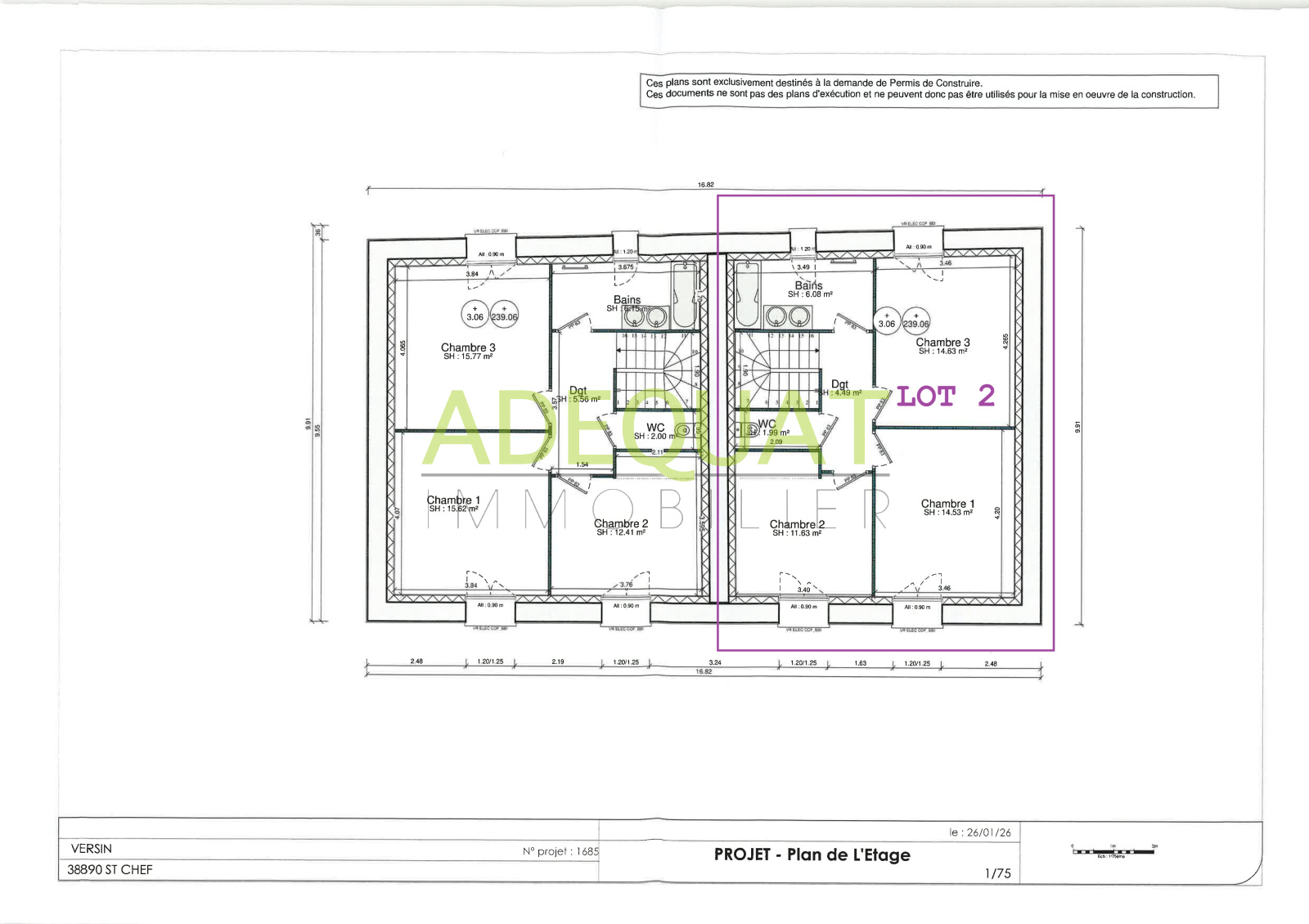
Appartement 4 pièce(s) 3 chambre(s) 110 m²

1
325 m²
95 000 €
Réf 1940 - 2

EXCLUSIVITE - A SAINT CHEF - 10mn de BOURGOIN JALLIEU, idéal pour les bricoleurs et les amoureux du patrimoine, les investisseurs locatifs après rénovation ! APPARTEMENT DUPLEX T4 de 110m² dans une grange dauphinoise divisée en 2. Il nécessite tout à créer et est vendu avec le Permis de construire ( PC modificatif possible pour adapter à vos besoins), Il dispose d'une cour abritée pour le stationnement et d'un grand jardin privatif. NB : le préau en façade sud sera détruit avant vente.

Points forts :

  • Gros potentiel de personnalisation et d’optimisation des espaces
  • Cour de stationnement et jardin privatif
  • Exposition Est/SUD/ Ouest (lumière naturelle tout au long de la journée)
  • Environnement calme
  • Pas de copropriété

À prévoir :

  • Viabilisations et raccordements (Enedis,Telecom, Eau )
  • Assainissement individuel ( micro station )
  • Travaux de rénovation, aménagement et finitions selon vos choix

Pour touts renseignements complémentaires et visite, contacter Valérie PEROT 06x86x37x60x06 - Agente immobilière.

Les informations sur les risques auxquels ce bien est exposé sont disponibles sur le site Géorisques : www.georisques.gouv.fr

Bilan énergétique

Diagnostics énergetiques
Consommation énergétique
A B C D E F G
Emission de gaz à effet de serre
A B C D E F G
DPE non concerné
A propos de ce bien Caractéristiques de ce bien
  • Surface 110 m²
  • terrain 325 m²
  • séjour 51 m²
  • 3 chambre(s)
  • 1 salle(s) de bain
  • construit en 1850
  • cuisine
  • exposition Sud
  • 1 côté(s) mitoyen(s)
  • 2 niveau(x)

Financier

Informations financières
Prix de vente 95 000 € Les honoraires d'agence seront intégralement à la charge du vendeur

Simulation

Calcul des mensualités
* Champs obligatoires
ADEQUAT IMMOBILIER Agence